Corso Duca degli Abruzzi 78
Torino (TO)
10129
Italia
P. IVA 07725940014
Loano (SV).
Committente: società privata
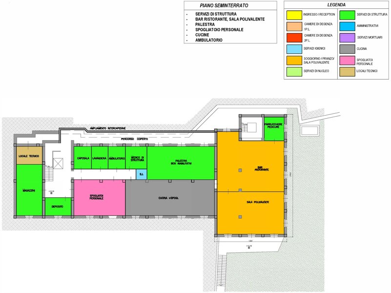
Proposta di totale riqualificazione edificio vincolato sulla collina di Loano. Progetto preliminare.
Ridistribuzione e recupero funzionale a edificio socio assistenziale per anziani con annessi servizi.
Edificio 5335 mq.
Posti letto 120
Giardino attrezzato 3930 mq Rooftop/solarium 1400 mq.












