Flavio Modena + Associati

CONTATTACI
INDIRIZZO
SOCIAL

Flavio Modena + Associati

info@modenassociati.it

Corso Duca degli Abruzzi 78

Torino (TO)

10129

Italia


linkedin
youtube

P. IVA 07725940014

8fc92e71d6371904b28a6b852f7bf9935b06a807

Informativa sulla Privacy

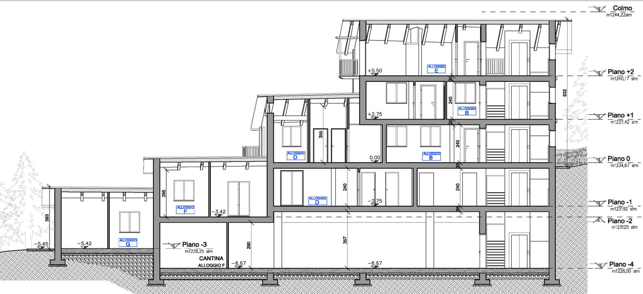
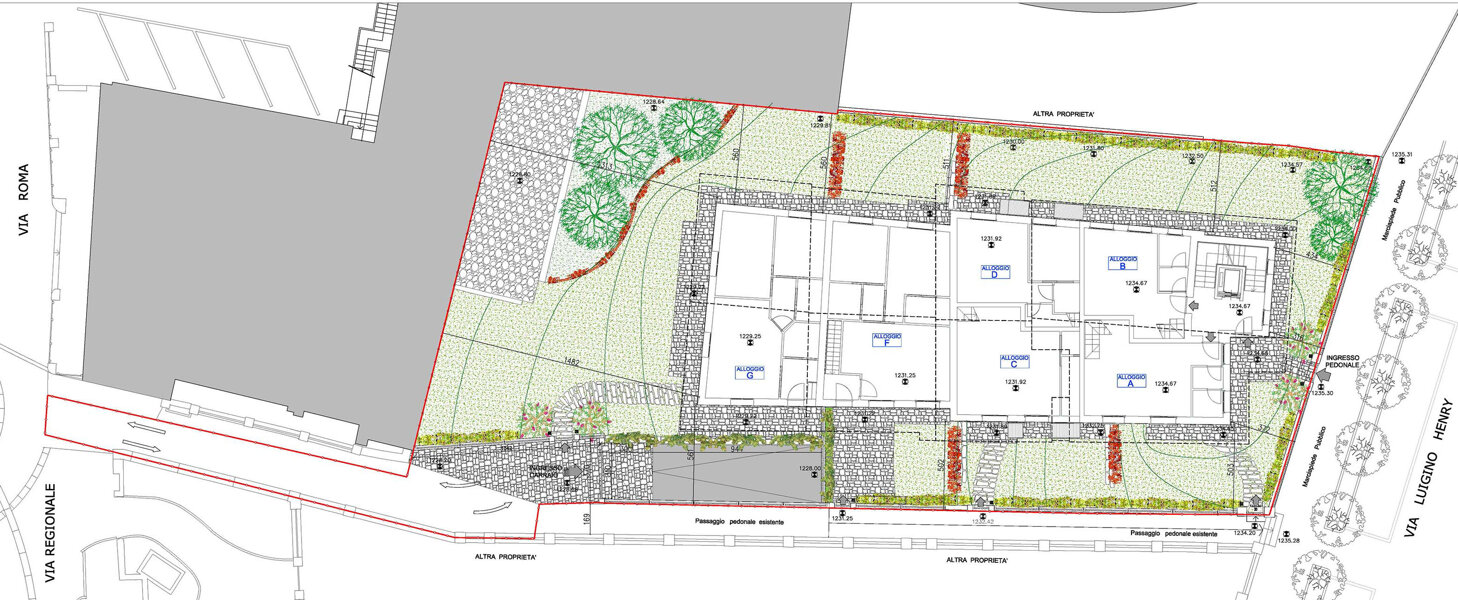
LA CASA NEL BOSCO

Courmayeur (AO).

Committente privato.

Edificio residenziale di sette alloggi.

2 piani + autorimessa.