Corso Duca degli Abruzzi 78
Torino (TO)
10129
Italia
P. IVA 07725940014

Torino.
in collaborazione con STUDIO DEDALO Torino
Committente: Accordo pubblico-privato.
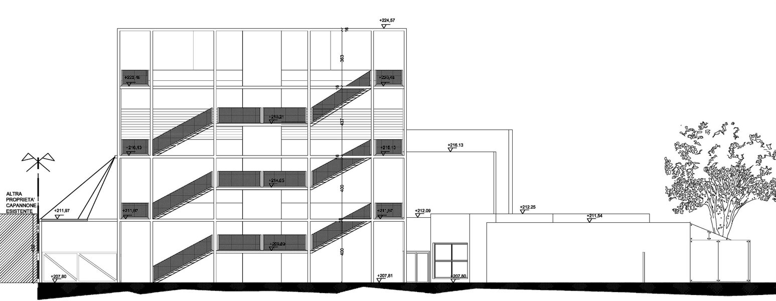
Progetto definitivo per realizzazione di un edificio polifunzionale con spazi didattici, di conferenza, ristorazione, foresteria.







