Corso Duca degli Abruzzi 78
Torino (TO)
10129
Italia
P. IVA 07725940014

Torino.
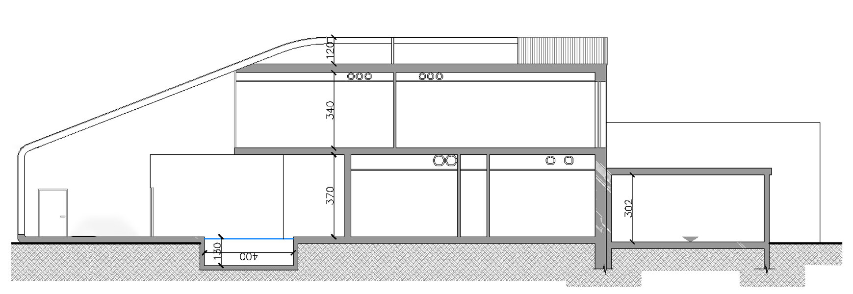
Recupero di campi da bocce coperti.
Ristrutturazione di complesso sportivo con recupero di campi da bocce in disuso e trasformazione in centro-benessere con relax-corner - piscina coperta - palestra - club-house - campi da tennis coperti e scoperti.
Club sportivo + health care.













