Corso Duca degli Abruzzi 78
Torino (TO)
10129
Italia
P. IVA 07725940014

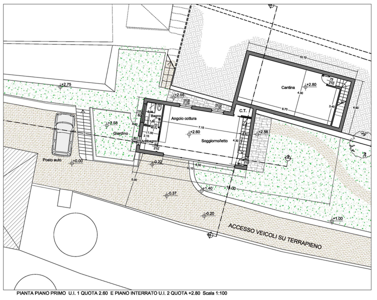
Verezzo, fraz. di Sanremo (IM).
Committente privato.
Demolizione di fabbricati fatiscenti e nuova costruzione, con recupero volumetrico di due abitazioni gemelle a piani sfalsati sui terrazzamenti esistenti.











